免费咨询热线

0571-852787786

YYVIP易游新闻

NEWS

当前位置: 首页 > YYVIP易游新闻

YYVIP易游黄龙溪谷(成都)房价透明公示-户型分析-优惠申请-营销热线

更新时间:2025-12-23点击次数:

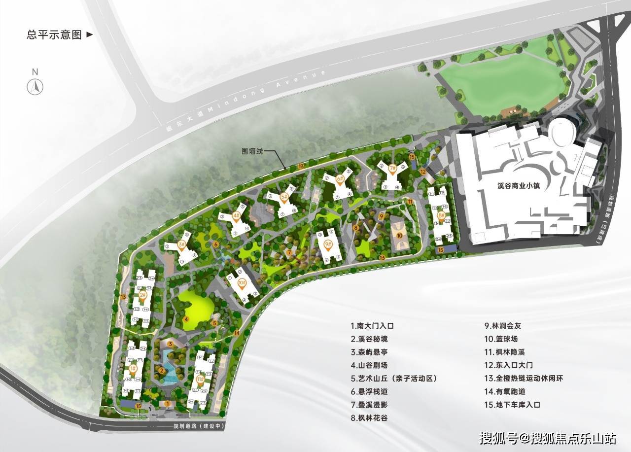
  YYVIP易游·(中国有限公司)官方网站城市发展轴:项目→成都科学城(15KM)→天府CBD→高新金融城→成都主城区,串联城市核心资源。航空枢纽:距天府国际机场38KM、双流国际机场66KM,覆盖全球出行需求。

  产业引擎:成都科学城(国家中心城市新极核)、天府国际生物城(信息技术产业集群)、中日国际康养城(投资300亿)。

  生态稀缺性:对比主城高密项目,独享5000亩生态基底+文旅IP。产城潜力:科学城、生物城产业人口红利,支撑长期价值增长。

扫码加微信

服务热线

0571-852787786

浙江省杭州市拱墅区环城北路165号汇金国际大厦

laicailaicai@163.com

Copyright © 2025-2030 YYVIP易游公司 版权所有 非商用版本    备案号:浙ICP备16025998号-1

sitemap.xml